APARTAMENT PER SHITJE 2+1NE KAMEZ -

109,480 €

Përshkrimi

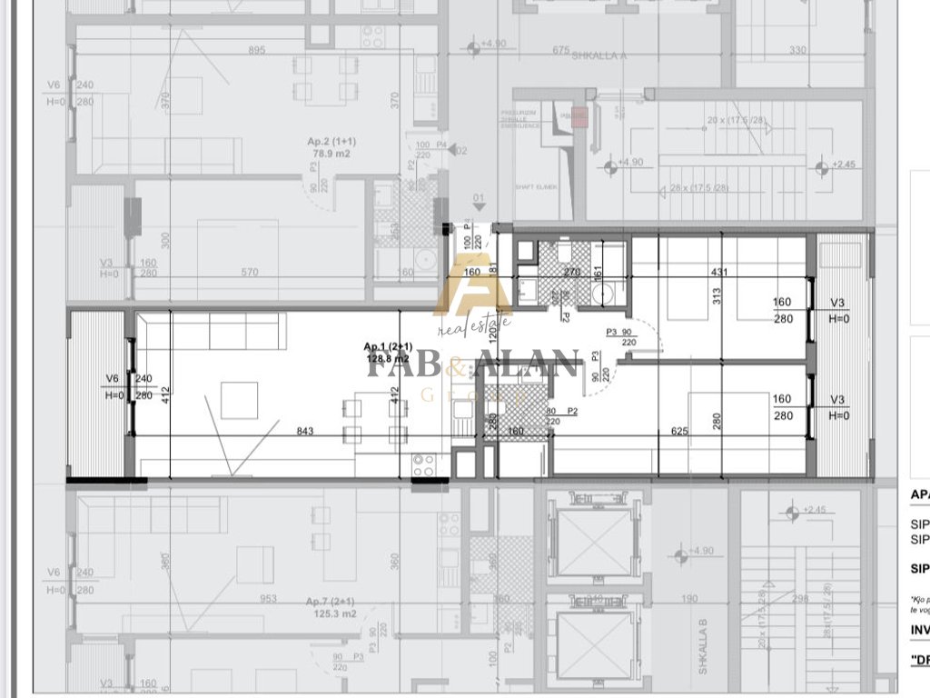
Ky Ă«shtĂ« plani arkitektonik i njĂ« apartamenti me tipologji 2+1, me sipĂ«rfaqe 128.8 mÂČ (Ap.1).

📐 PĂ«rshkrimi i apartamentit:
Apartamenti ofron një organizim shumë funksional dhe të ndriçuar natyralisht në çdo ambient. Zona e ditës përbëhet nga një sallon i gjerë me kuzhinë të integruar dhe dalje në ballkon që ofron ndjesi hapësire dhe pamje të këndshme.
Zona e natës ndahet nga korridori dhe përfshin dy dhoma gjumi komode, prej të cilave njëra ka dalje në ballkon privat. Apartamenti ka gjithashtu dy tualete të pajisura plotësisht dhe një depo të brendshme praktike për ruajtjen e sendeve.

🏠 Karakteristikat kryesore:
‱ SipĂ«rfaqe totale: 128.8 mÂČ
‱ Tipologjia: 2+1
‱ Sallon i bollshĂ«m + kuzhinĂ« moderne
‱ 2 dhoma gjumi
‱ 2 tualete
‱ 2 ballkone me dalje nga dhoma e ndenjes dhe dhoma e gjumit
‱ Depo e brendshme funksionale
‱ Ndriçim i bollshĂ«m natyral falĂ« dritareve tĂ« mĂ«dha

Ky apartament përfaqëson një zgjedhje ideale për ata që kërkojnë komfort, funksionalitet dhe cilësi banimi, duke kombinuar hapësirat e bollshme me ndarjen perfekte të ambienteve.

Për më shumë informacion ose një vizitë në pronë kontaktoni në nr. +355692055138!

Detajet e Pronës
  • ID e PronĂ«s: PROFA1777
  • Lloji i PronĂ«s: Apartment
  • Statusi i pronĂ«s: Listimet e fundit
  • Cmimi: 109,480 €
  • Dhoma: 3
  • Dhomat e gjumit: 2
  • Tualetet: 1
  • Sip. Totale: 129 m2