TEK GENER 2 BULEVARDI I RI, APARTAMENT 1+1 PER SHITJE! Për Shitje

136,450 €

Përshkrimi

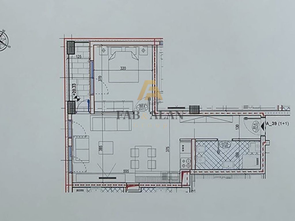
Apartament 1+1 për Shitje – Orbital 5, zona e Gener 2

Ju prezantojmë një mundësi të shkëlqyer investimi dhe banimi në një nga projektet më moderne të zonës së Gener 2, tek kompleksi Orbital 5. Apartamenti ndodhet në katin e 4-t të një godine në ndërtim me standarde të larta cilësie dhe organizim funksional.

Karakteristikat kryesore:
• Tipologjia: 1+1
• Sipërfaqe neto: 60.90 m²
• Sipërfaqe bruto: 68.22 m²
• Faza aktuale e punimeve: ka përfunduar suvatimi

Ky apartament ofron një ambient të mirëorganizuar, me ndriçim natyral, si dhe perspektivë të shkëlqyer për rritje vlere me përfundimin e projektit. Ideale si banesë për çift të ri apo investim për qira afatgjatë, falë pozicionit dhe projektit cilësor.

Për më shumë informacion ose një vizitë në pronë kontaktoni në nr. +355692055138!

Detajet e Pronës
  • ID e Pronës: PROFA1775
  • Lloji i Pronës: Apartment
  • Statusi i pronës: fab-alan.under_construction
  • Cmimi: 136,450 €
  • Dhoma: 2
  • Dhomat e gjumit: 1
  • Tualetet: 1
  • Sip. Totale: 68 m2
  • Sip. e brendshme: 61 m2
  • Kati: 4